真空过滤机盘式





真空过滤机盘式技术特点
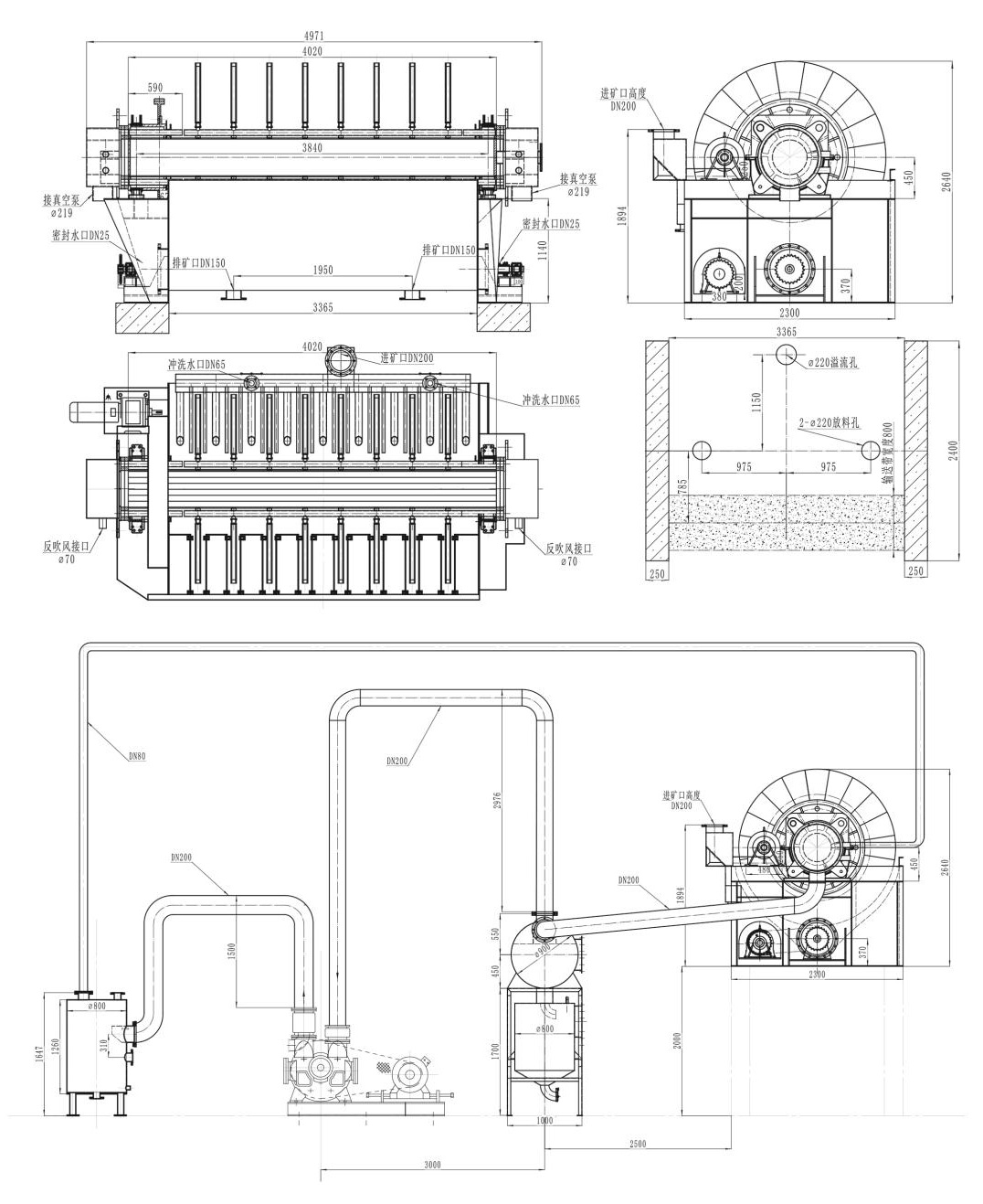
1、滤扇:
结合现有滤扇使用的一些缺陷,根据选矿行业的特殊性,我公司重新设计了专用新型滤扇。
(1)表面光滑,脱水孔分布均匀,孔率合理,滤扇和筋条的边缘均呈圆角,不但提高了脱水率,同时也延长了滤布的使用寿命。
(2)滤扇头有倒角,强度高,滤扇底部有加强筋,在装配、拆卸时不易损坏、断裂。
(3)筋条走向与滤扇的中心线夹角更合理,流体阻力小。滤扇的有效面积大,提高了过滤机的处理能力。
(4)滤扇的壁厚比普通的增加了1/3,同时滤扇的重量也增加了1/3,是现在国内市场上结构合理、牢固的滤扇之一,平均寿命延长1.5-2倍。
2、主轴与过滤管:
(1)过滤管(包括轴头)采用高强度耐磨陶瓷复合钢管,管壁厚,不易磨损,提高寿命二到三倍以上。
(2)滤液管与滤扇接口处取消法兰连接,而采用模具定位直接焊接,排除了原法兰连接处防漏胶皮垫圈老化的因素,消除了可能的漏气点。
(3)每扇滤扇一块压板,压板两端分别用不锈钢螺栓和螺母压紧,不易生锈,便于更换滤布、劳动强度大副减低。
3、搅拌:
针对铁矿粉的特殊性能,针对现在市场上过滤机容易漏和搅拌系统不耐用的特点,我公司采取以下搅拌装置,达到理想效果,并得到用户广泛好评。
(1)加永磁铁--防止矿粉进入搅拌套内;
(2)采用水密封;
(3)采用盘根密封;
(4)加轴用骨架密封圈密封;
(5)轴表面进行镀铬处理,不易生锈;
4、槽体
搅拌轴下方槽体内采用刚玉高分子耐磨涂层,防止槽体钢板磨损。
5、控制盘、摩擦片:
采用特制耐磨硼磷铸铁,刚柔相济,密封效果好,使用寿命延长2-3倍。
6、润滑和清洗:
采用干油泵集中多点自动润滑,保证设备正常运行。滤布清洗采用自动清洗装置,保持了良好的脱水效果。
7、电控:
采用变频调速,以物料的浓度及流量调节,达到理想的工作效果。